-HOME DESIGNS -
CAPE STYLE
You will find several of ourpopular cape floor plans displayed here. There are many more to choose from and all of them are flexible and can be customized to your needs. We also have several two story capes to choose from.
The listed prices for the homes below do not include the cost of the land, but do include average site development costs (subject to lot review), as well as oil baseboard heat with domestic hot water. We have a large inventory of nice lots available in the area for you to consider.
For a larger view of the plan simply click on the image.
Model #107

- Cape Auburn - $111,100
1,041 Square Feet (24 x 44)
The Cape Auburn offers distinctive living with an immense living room opening into a formal dining room. The kitchen is expansive and has a convenient island. The two spacious bedrooms offer ample closet space. There are also two full baths. This home is available in a 26' width.
Model #231
 - Cape Cod - $110,600 1,040 Square Feet (26 x 40)
Featuring a grand living room, open dining room and kitchen, this cape offers tremendous space. Two large bedrooms and a generous bath perfectly accommodate a family or guests. This plan is also available in a 27'6" width.
Model #233
 - Cape Hatteras - $114,700 1,144 Square Feet (26 x 44)
The expansive space of the Cape Hatteras is perfect for family living with two large bedrooms, a full bath, a spacious living room and a nice large dinning room. This home is also available in a 27'6" width.
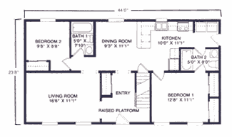
Model #317  - Cape Charles - $119,900 1,210 Square Feet (28 x 44)
The expansive space of this home is perfect for entertaining and living with a formal living room and dining room, a spacious kitchen, and two bedrooms.
Model #344
 - Cape Bristol - $112,900
1,210 Square Feet (28 x 44)
Relax in privacy and space with a master bedroom suite featuring full bath and walk-in closet. There is an additional bedroom, a full bath and comfortable kitchen.
|